Контакти

Жилищна сграда Varnenchik 4

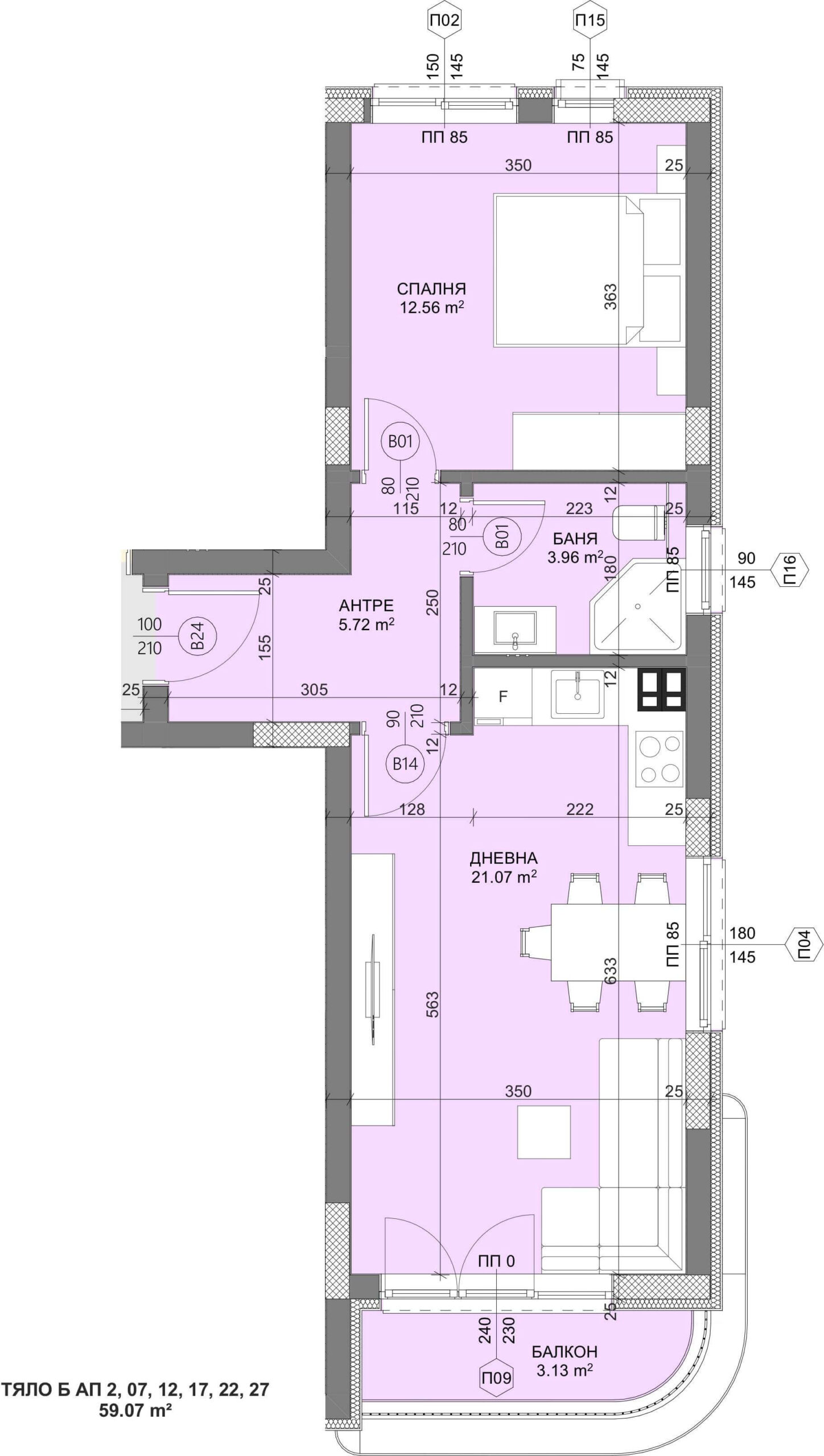
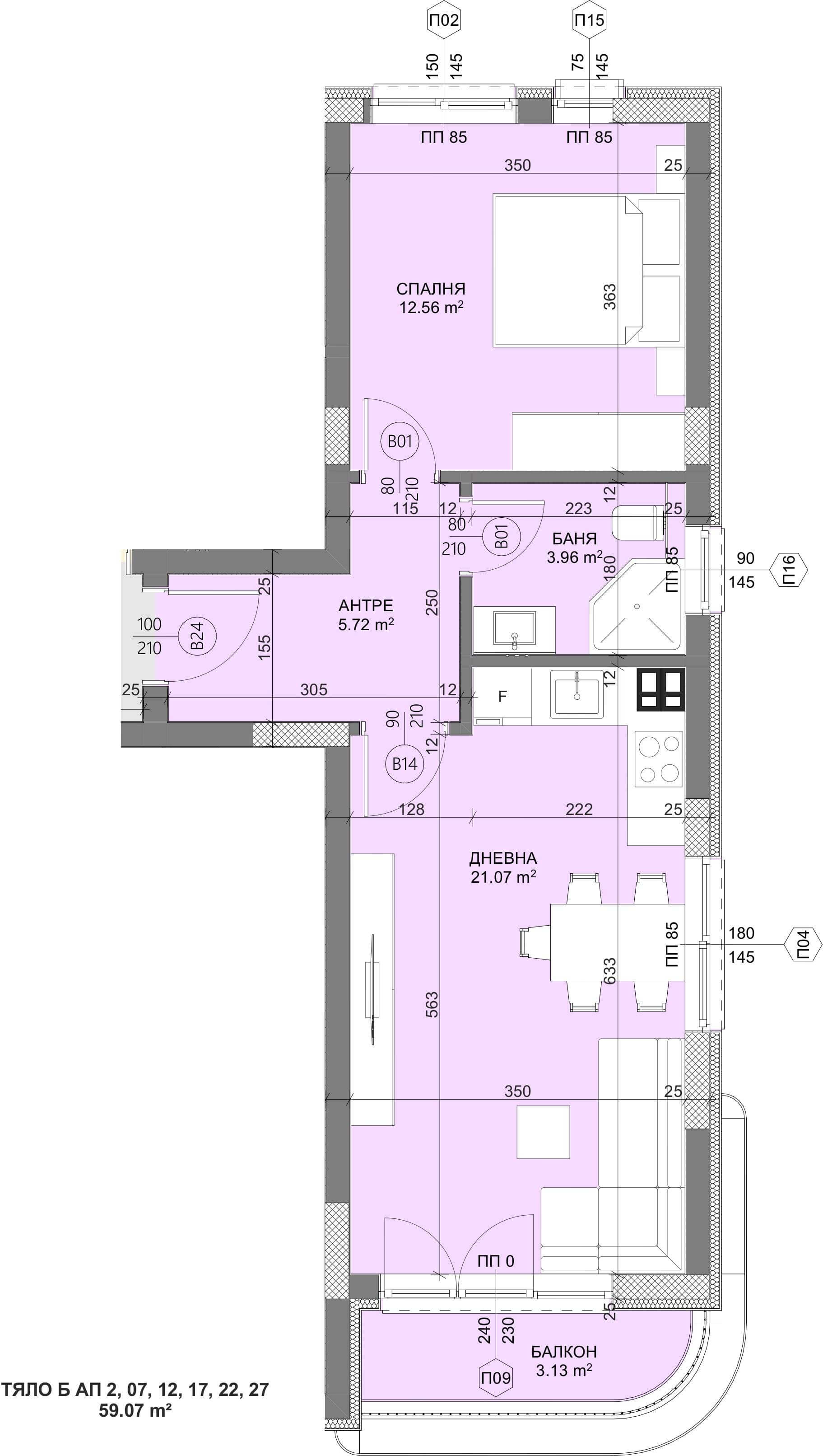
Апартамент № Б27

Изложение: Юг-Изток-Север

Апартамент – Дневна с кухненски бокс, спалня, баня с тоалетна, антре и балкон.

Етаж 7
Тип Двустаен
Чиста площ 59,07 m2
Общи части 7,57 m2
Обща площ 66,64 m2
Статус Продаден
Residance Building Varnenchik 4
КОНТАКТИ: +359 89 61 62 777 office@admin.novvek.bg ул. София 3, партер
Нов Век Web Design & SEO by
+359 89 61 62 777 office@admin.novvek.bg ул. София 3, партер
Търсене на имот:
257 имота в
продажба