Контакти

Жилищна сграда Varnenchik 4

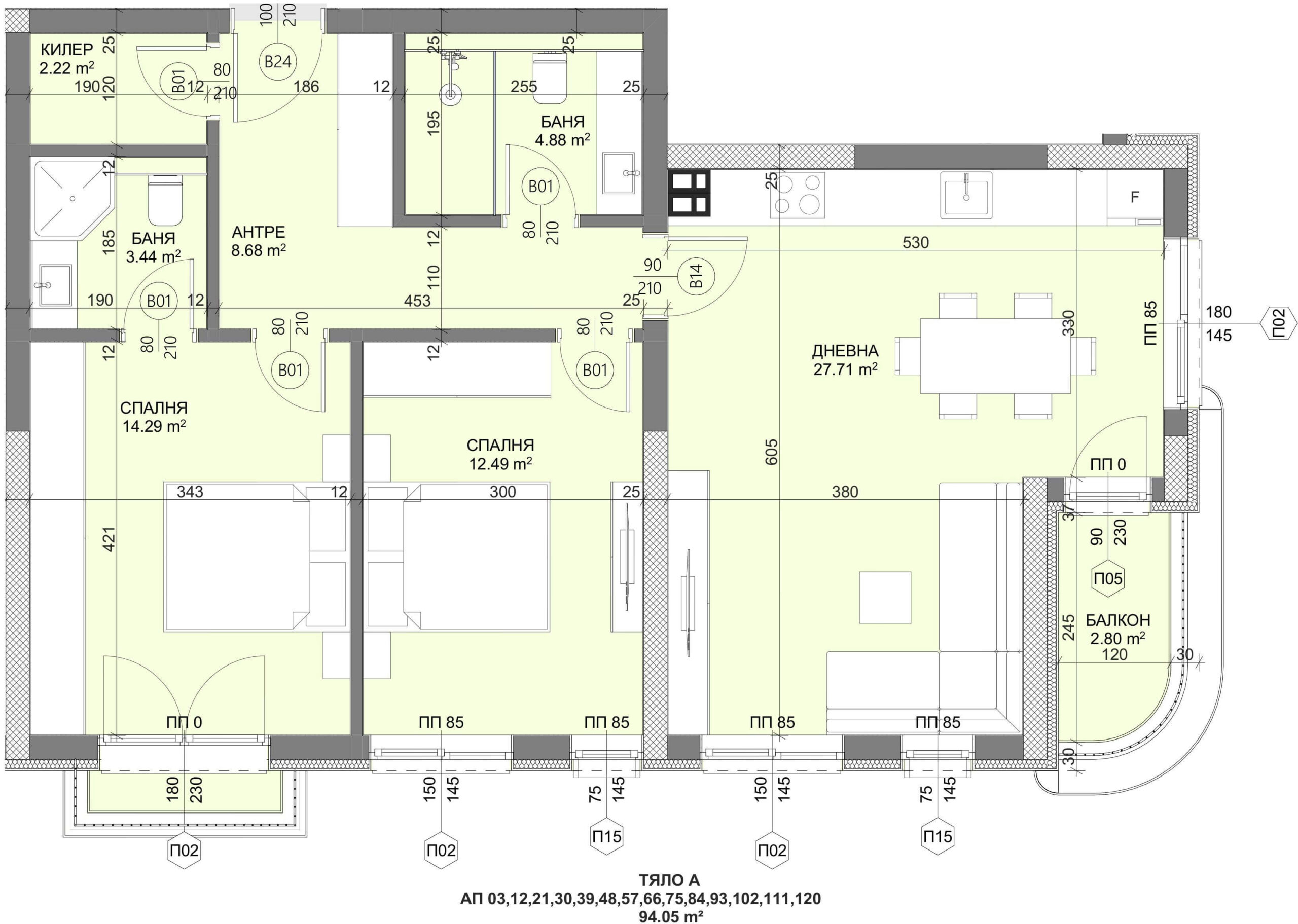
Апартамент № А12

Изложение: Юг-Изток

Апартамент – Дневна с кухненски бокс, 2 спални, 2 бани с тоалетна, килер, антре и 2 балкона.

Етаж 3
Тип Тристаен
Чиста площ 93,02 m2
Общи части 17,82 m2
Обща площ 110,84 m2
Статус Продаден
Residance Building Varnenchik 4
КОНТАКТИ: +359 89 61 62 777 office@admin.novvek.bg ул. София 3, партер
Нов Век Web Design & SEO by
+359 89 61 62 777 office@admin.novvek.bg ул. София 3, партер
Търсене на имот:
257 имота в
продажба