Контакти

Жилищна сграда Varnenchik 2

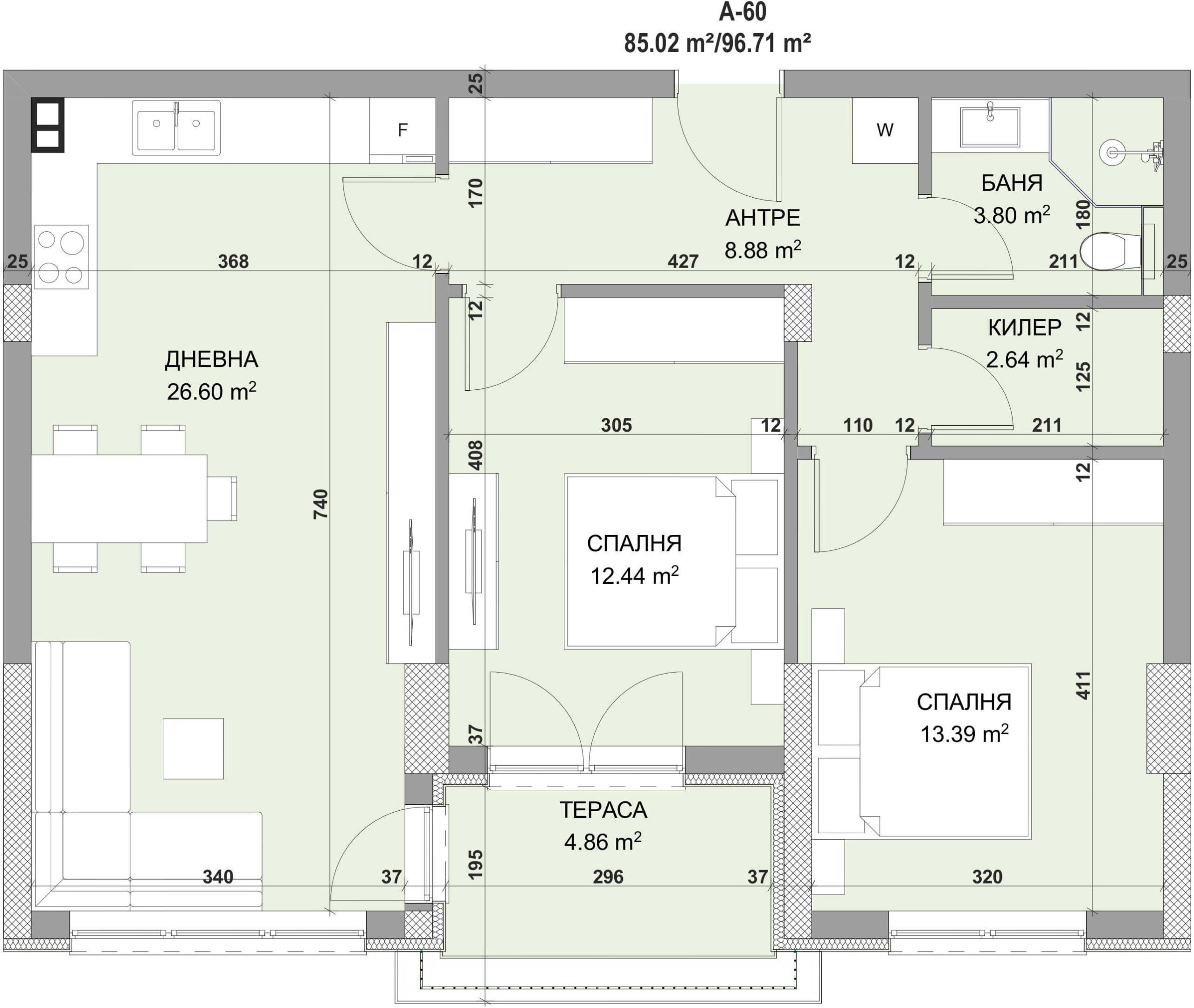
Апартамент № 60-А

Изложение: Юг

Апартамент – дневна с кухненски бокс, 2 спални, баня с тоалетна, килер, антре, тераса

Етаж 8
Тип Тристаен
Чиста площ 85,02 m2
Общи части 11,68 m2
Обща площ 96,70 m2
Статус Продаден
Residance Building Varnenchik 2
КОНТАКТИ: +359 89 61 62 777 office@admin.novvek.bg ул. София 3, партер
Нов Век Web Design & SEO by
+359 89 61 62 777 office@admin.novvek.bg ул. София 3, партер
Търсене на имот:
264 имота в
продажба