Paris
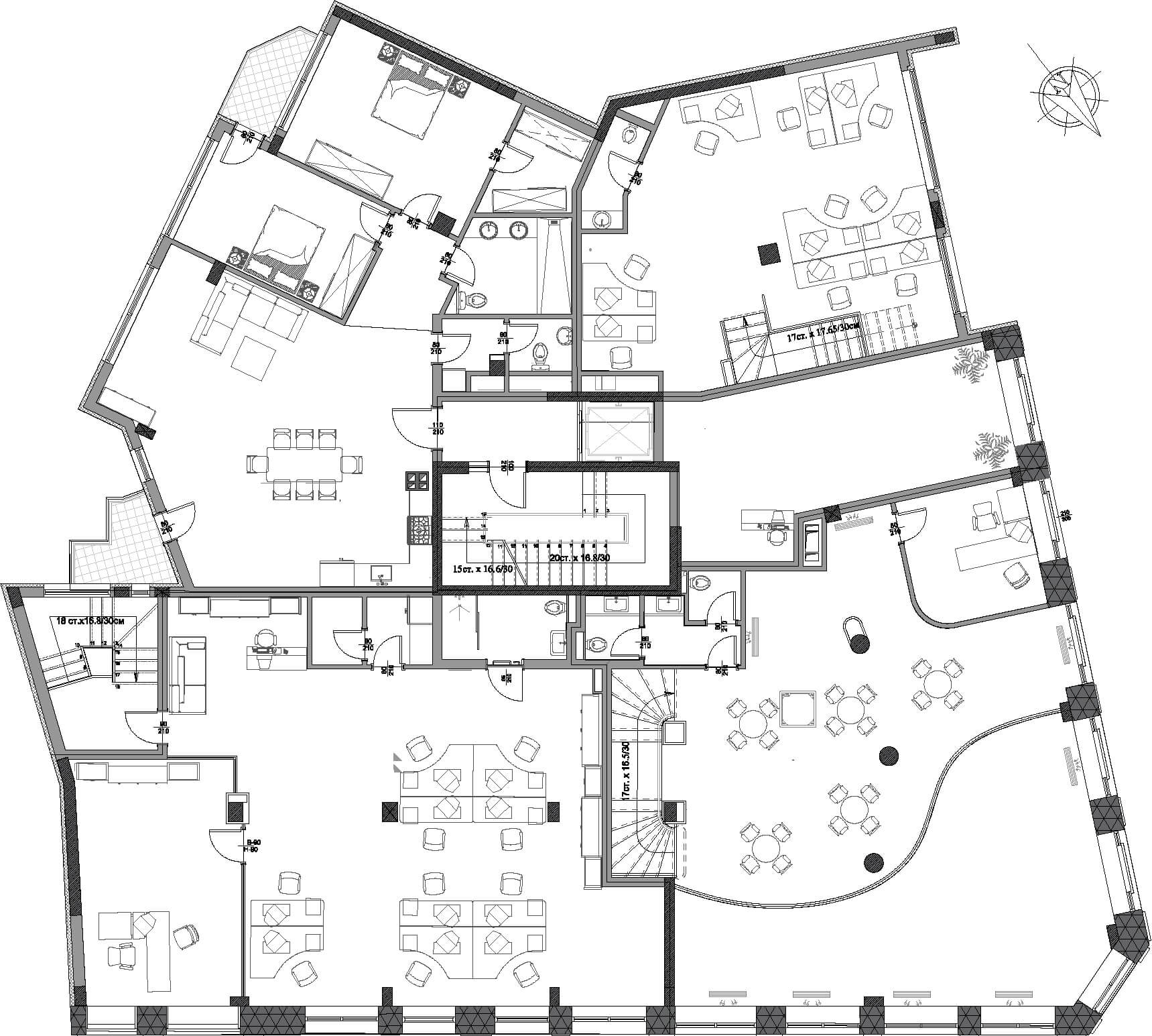
Етаж 2
„Париж“ е проект с ясно разпознаваема идентичност, в който историческата памет на сградата е съхранена и развита чрез съвременен архитектурен подход. Построена първоначално през 1906 г. по проект на арх. Геро Геров и достроена през 1910 г. от арх. Дабко Дабков, сградата днес е възстановена с внимание към автентичния ѝ екстериорен образ и декоративни елементи. Реализацията обединява реконструкция, възстановяване и ново строителство, така че да запази характерния облик на една знакова централна сграда и едновременно с това да отговори на съвременните изисквания за комфорт, функционалност и представителност.
Последни новини
Покупка на имот от ново строителство: Предимства и какво да внимавате
Ново строителство е все по-чест избор за купувачите – и с основание. Съвременните сгради предлагат модерни решения, енергийна ефективност и добри условия за живот. Но преди да подпишете договор – има няколко неща, които трябва да обмислите. 1....
29 април 2025
Инвестиция в недвижим имот: Какво да знаете преди да започнете
Инвестирането в недвижими имоти е един от най-предпочитаните начини за съхранение и умножаване на капитал. Но както всяка инвестиция, и тази крие рискове, които е добре да се познават. В тази статия ще разгледаме какво трябва да знаете,...
25 април 2025
Как да изберете подходящия имот: Практически съвети за купувача
Изборът на имот е едно от най-важните решения в живота на всеки човек. Без значение дали става въпрос за първо жилище, инвестиционен имот или ваканционен апартамент – процесът изисква внимание, подготовка и ясен план. В тази статия ще...
12 март 2025